ARCHITECTURE GUILD OF MARTIN RAJNIS
2018-2023
Since the beginning of my studies at the Faculty of Architecture, I have gravitated towards a free approach to design - learning outdoors and building while designing with friends was my dream.
Martin Rajnis' Guild of Architecture is a collective of creative architects and people from a variety of disciplines that I first met through student workshops. I had an incredible appreciation for their willingness to work with their students' hands, which is why after a few years I longed to be a part of the Guild.
Martin Rajnis is a very prominent figure in Czech architecture, mainly because of his fresh approach and constantly fresh perspective; for me, after several years of collaboration, he is a friend and a guru who helped me to break out of the static environment of architecture scene and to look at creation as at life - with open eyes, always eager to learn new things.
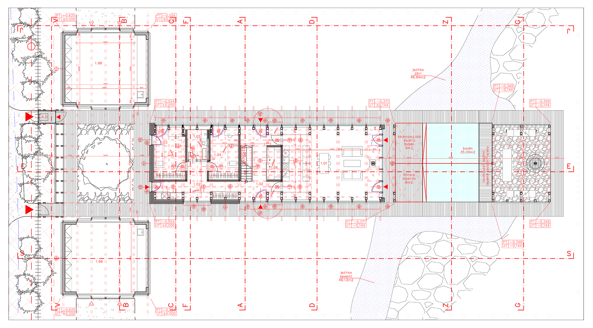
HOUSE IN BESKIDS
architecture study 2020, Architecture Guild of Martin Rajnis
The work on the architectural study started in 2018, it was one of the projects of an amazingly fun design of several elements of leisure attractions for children and adults.
A view of the whole of Prague and a host of novel attractions "suspended" in the vertical body of the tower are covered at the top by an artificial canopy of acacia trunks and a system of climbing plants.
At the lowest level is a restaurant and terrace, designed in the same spirit as the whole tower - the climbers form an ever-changing layer between visitors and the sky above them, above the glass roof.
A view of the whole of Prague and a host of novel attractions "suspended" in the vertical body of the tower are covered at the top by an artificial canopy of acacia trunks and a system of climbing plants.
At the lowest level is a restaurant and terrace, designed in the same spirit as the whole tower - the climbers form an ever-changing layer between visitors and the sky above them, above the glass roof.
MIRACULOUS TREE TOWER
architecture study 2019, Architecture Guild of Martin Rajnis
The work on the architectural study started in 2018, it was one of the projects of an amazingly fun design of several elements of leisure attractions for children and adults.
A view of the whole of Prague and a host of novel attractions "suspended" in the vertical body of the tower are covered at the top by an artificial canopy of acacia trunks and a system of climbing plants.
At the lowest level is a restaurant and terrace, designed in the same spirit as the whole tower - the climbers form an ever-changing layer between visitors and the sky above them, above the glass roof.
A view of the whole of Prague and a host of novel attractions "suspended" in the vertical body of the tower are covered at the top by an artificial canopy of acacia trunks and a system of climbing plants.
At the lowest level is a restaurant and terrace, designed in the same spirit as the whole tower - the climbers form an ever-changing layer between visitors and the sky above them, above the glass roof.